MENU

Pistek

CATEGORY: Architecture

LOCATION: Czech Republic

YEAR: 2020

CLIENT:

STATUS: Project

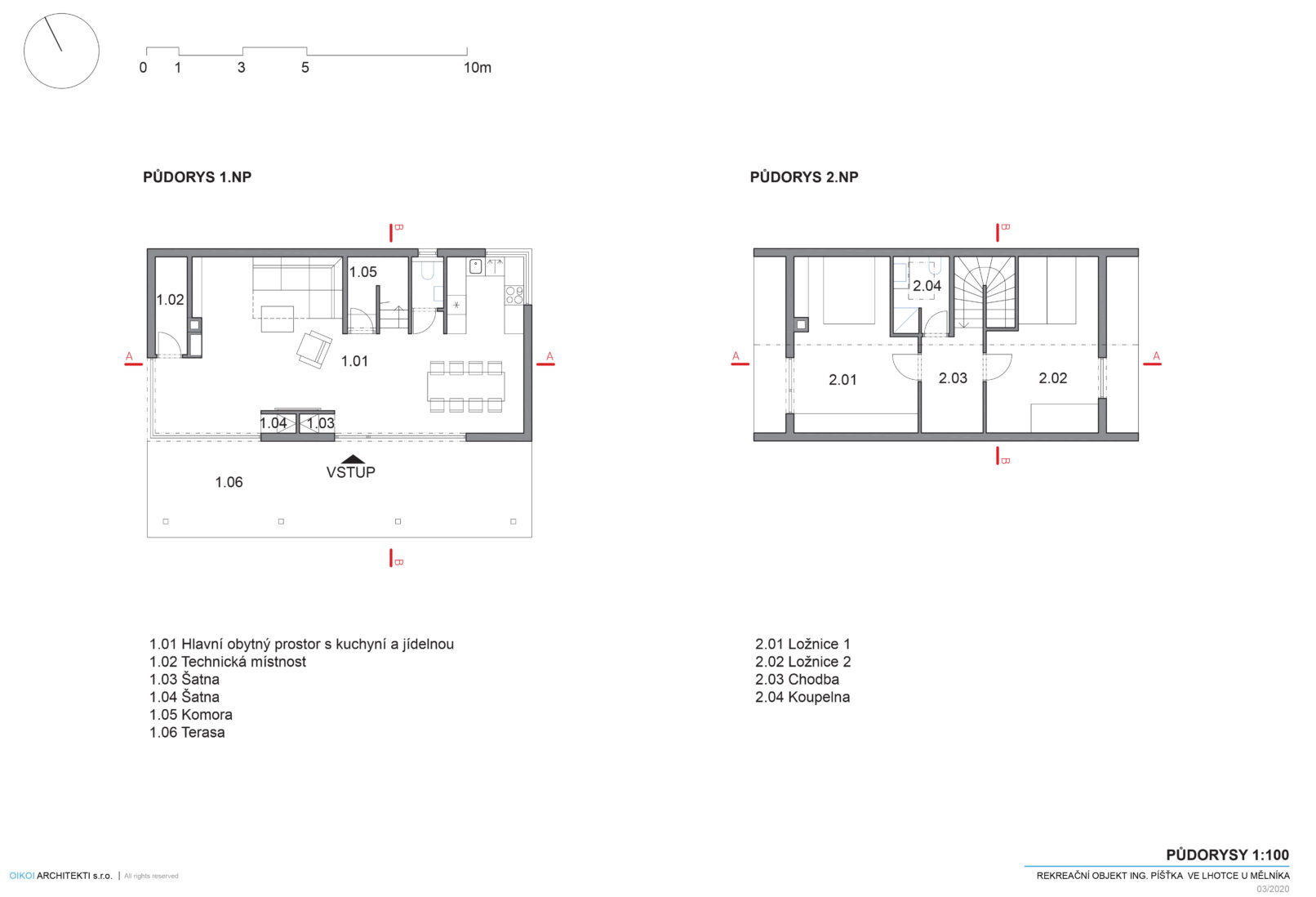
DESCRIPTION: Architectural proposal of cottage house