Sorting plant in Kaspi
CATEGORY: Industrial Architecture
LOCATION: Kaspi
YEAR: 2021
CLIENT: Private client
STATUS: Project
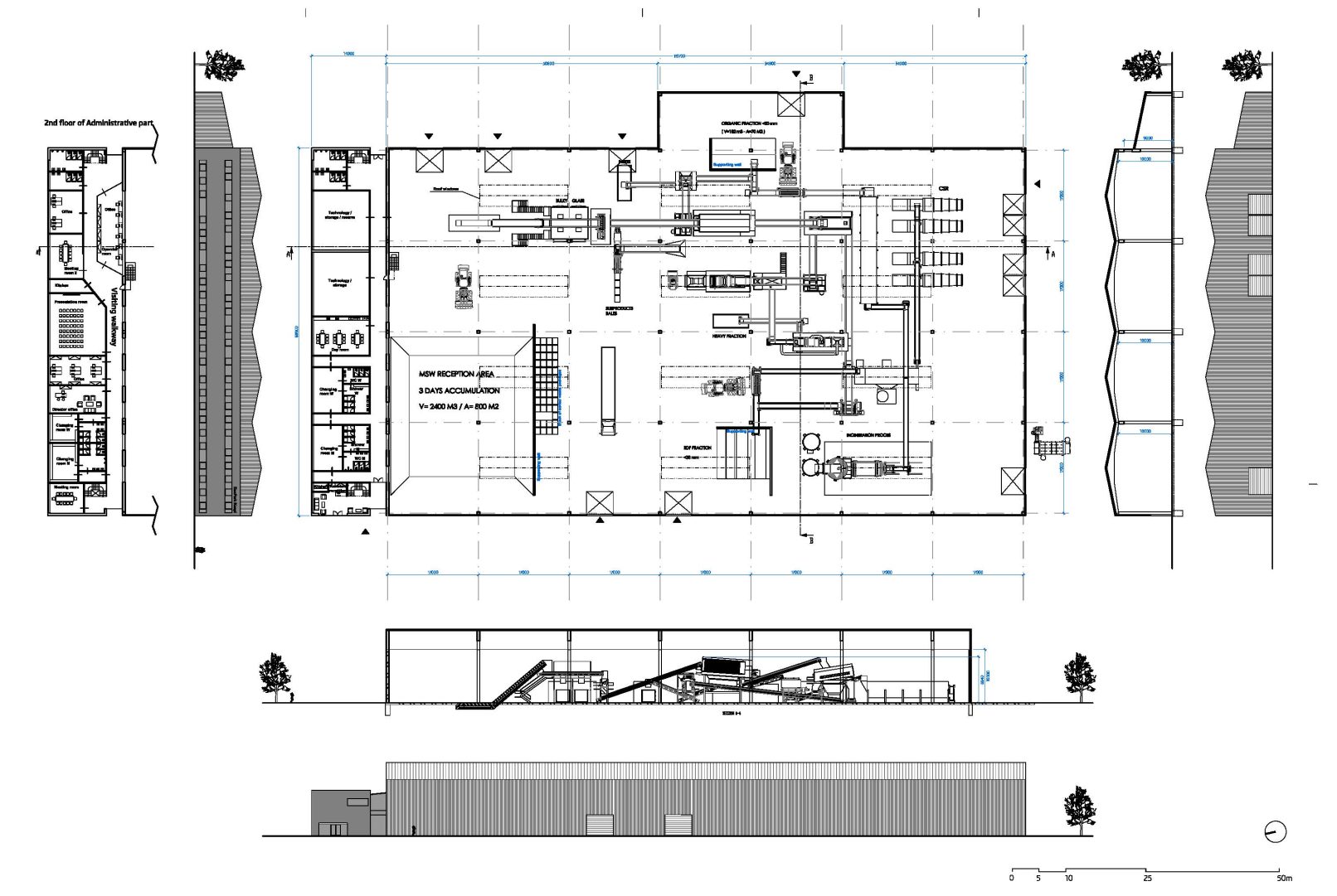
The conceptual study is based on the needs of the city Kaspi in a field of municipal sorting and recycling waste. The implementation of this project will take place to improve the collection and sorting network in the city.
The proposed system corresponds to the world trends in this field – not only used technology, but also higher technical level of complexity liquidation solutions waste. Another element of the project is separation secondary raw materials and their preparation for transport and further processing. The project is innovative in incorporating specifically designed thermal units for use organic waste as a fuel for drying the main product of the RDF line.
The undeniable advantage of the project is the economic sustainability. The project not only contributes to the environment but is able generate profits.
 
		    

